autor: BIRO
projektni tim: saša košuta, mario kralj, dora lončarić, hrvoje arbanas, vana pavlić, mario peko
investitor: Sveučilište Josipa Jurja Strossmayera u Osijeku
lokacija: osijek
status: javni natječaj, 1.nagrada
godina projekta: 2021
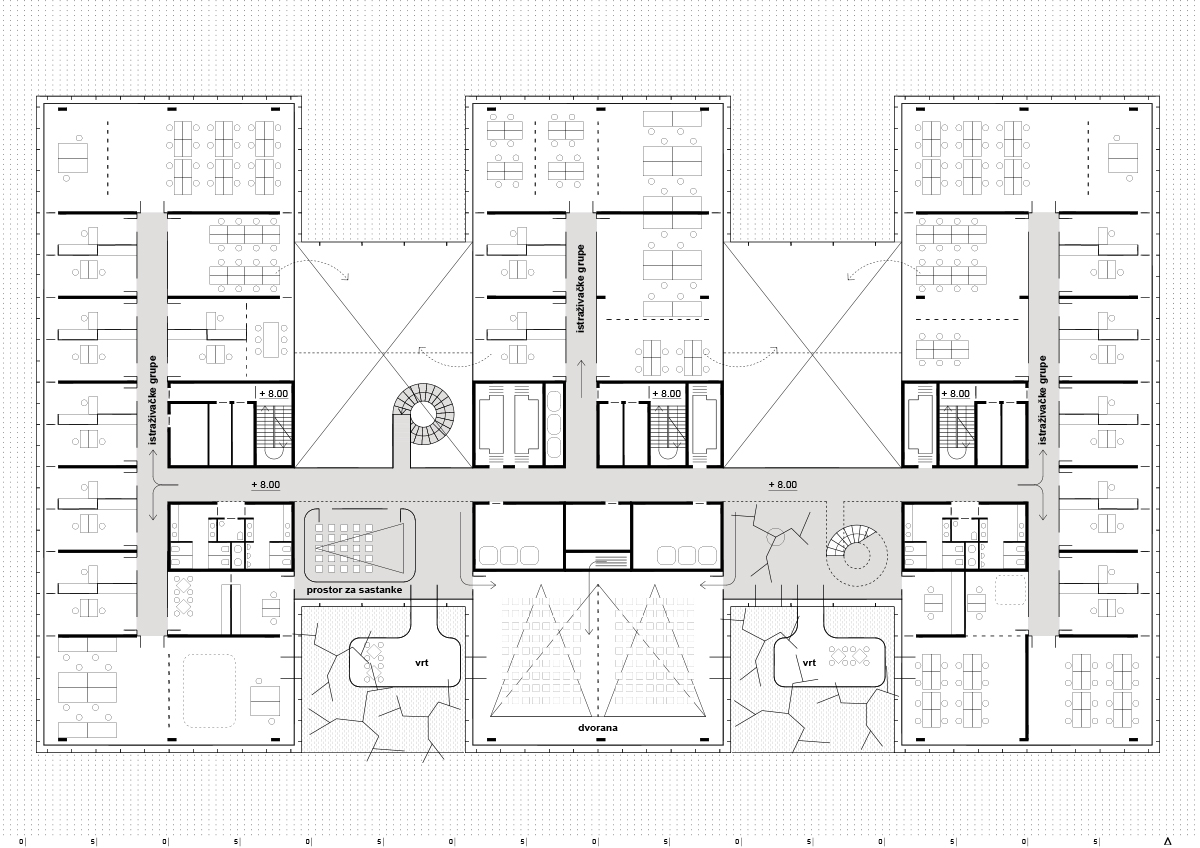
Buduća zgrada znanstveno istraživačkog centra elektrotehnike i računarstva nastavlja razvoj Sveučilišnog kampusa u Osijeku. Glavni cilj je struktura koja će kroz svoju arhitekturu odražavati namjenu koja se u njoj odvija: znanost, inovacije, elektrotehniku i računarstvo. Zgrada se svojom konfiguracijom istovremeno integrira u znanstvenu zajednicu i otvara društvu kroz prezentaciju i popularizaciju znanosti, postaje fokalno mjesto različitih znanstvenih događanja u užem i širem kontekstu.
Istraživački centar je razložen u nekoliko volumena, razrahljen vrtovima i staklenicima kako ne bi postao dominantna masa u okolnom izgrađenom urbanom tkivu. Točnije, tri razdvojena volumena naseljena istraživačkim grupama komuniciraju preko višeetažnih zajedničkih prostora zgrade objedinjenih u staklenicima. Zajednički prostori su povezani otvorenim stubištima i galerijama, prošireni su tribinama i vanjskim vrtovima, a sve s ciljem stvaranja ugodnog radnog prostora kao i prostora koji pokazuje aktivnosti koje se tamo provode. Parcela je isprepletena arheološkim nalazima koji uvjetuju djelomično izdizanje zgrade na sjeverozapadnoj strani i prezentiranje povijesnih tragova.
Krov je zamišljen kao otvoreni svima dostupan reprezentativni poligon, ispunjen nizom sklopova obnovljivih izvora energije. Zgrada se planira kao zgrada gotovo nulte energije (nZEB - nearly zero energy building). U najvećoj mjeri koristi se energija iz obnovljivih izvora za grijanje, hlađenje, pripremu sanitarne tople vode, ventilaciju i rasvjetu. Zgrada kao takva ima vrlo visoka energetska svojstva uz niske operativne troškove i troškove održavanja. Pri projektiranju gotovo nulte zgrade posebna pažnja je posvećena i optimalnom iskorištavanju lokalnih klimatskih uvjeta, odnosno pasivnim mjerama toplinske zaštite. Kako se znanstveno istraživački centar promišlja kao poligon za poboljšanje uvjeta za inovacije u području elektrotehnike i računarstva, planira se ugradnja i crpno-akumulacijske hidroelektrane, odnosno istražuju se i mogućnosti proizvodnje električne energije iz energije vode. Cijelom zgradom upravlja sustav KNX - EIB. Pametne instalacije osim što omogućuju opću komunikaciju i upravljanje zgradom, omogućiti će i upravljanje potrošnjom električne energije.











