autor: BIRO
projektni tim: Hrvoje Arbanas, Anita Elez, Saša Košuta, Mario Kralj, Dora Lončarić, Matija Babić
investitor: Grad Crikvenica
lokacija: Crikvenica
status: javni natječaj, 1.nagrada
godina projekta: 2018.
Crikvenički perivoji nastali su planski, nasipavanjem obale, s ciljem da se poljepšanjem krajobraza oplemeni urbana sredina i sveukupna turistička ponuda grada. Prvi su turistički radnici i vrtlari, prilikom oblikovanja perivoja često koristili egzote i vazdazeleno bilje iz eumediteranskih dijelova svijeta, koje prevladava i danas, kako bi u promicanju turizma što više istaknuli dojam toplog juga. Od početka nastanka prvih perivoja do danas, u većoj ili manjoj mjeri, perivoji u Crikvenici suočeni su sa zajedničkim problemom, a to je volja i želja da se novim perivojima oplemeni krajobrazna slika grada.
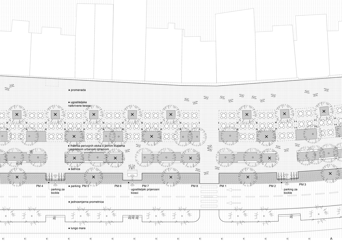
Smišljeno nastao gradotvorni pejsažno-perivojni pojas – perivojni obalni potez, prepoznatljiv je u identitetu grada Crikvenice i kao takvog potrebno ga je sačuvati kao značajni krajobraz i vrijedno kulturno-povijesno naslijeđe u slici grada.
Oblikovanje novo uređenog trga S. Radića sugerira sklad između visoke potrebe za terasama te iznimno vrijednog nasljeđa aleje drvoreda. Unificirane strehe lineranog doživljaja podmeću se pod krošnje minimalizirajući vizualni naglasak. U nastavku te misli, sama šetnice poprima jednaki tretman. Obostranim nadopunjavanjem zatečenog dvoreda, strehe terasa i promet u mirovanju podvinuti su unutar presjeka šetnice te se akcent doživljaja vraća na sama stabla.








