Poslovna zgrada Radnička2017

autor: BIRO
projektni tim: saša košuta, mario kralj, dora lončarić, hrvoje arbanas
investitor: privatni
lokacija: Radnička cesta, Zagreb
status: javni arhitektonski natječaj, 1.nagrada
godina projekta: 2017

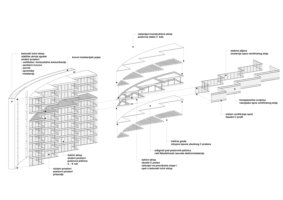
Urbanistički uvjeti zadane parcele u zagrebačkoj poslovnoj zoni određuju izlomljenu i na dijelove veoma suženu zonu izgradnje s otežanom mogućnošću realizacije konvencionalne tipologije: poslovna zgrada sa središnjom jezgrom koja servisira okolne radne prostore i vertikalno povezuje sve etaže minimizirajući utrošak kvadrature na samu komunikaciju.Uzdignut je volumen koji prati obrise moguće tlocrtne izgrađenosti s diferenciranim sjevernim lukom koji objedinjuje izlomljene južne istake. Utoliko, program jasno dobiva svoje oblikovanje - longitudinalni komunikacijski koridor koji servisira segmentirane radne prostore.

Ostvareni su poslovni prostori slobodnog tlocrta i velikih mogućnosti funkcionalne podjele i organizacije rada. Programsku dvojnost (komunikacijsko - servisna jezgra i otvoreni radni prostor) prati koncept nosive konstrukcije i materijala. Betonski lučni sklop statička je ukruta zgrade, dok su radni prostori ostvareni u čeličnoj konstrukciji.