Hotel u savskoj ulici2019

autor: biro
projektni tim: saša košuta, mario kralj, dora lončarić, vana pavlić, tihan bosnar
investitor: privatni
lokacija: savska ulica, zagreb
status: javni natječaj, 2. nagrada
godina projekta: 2019.

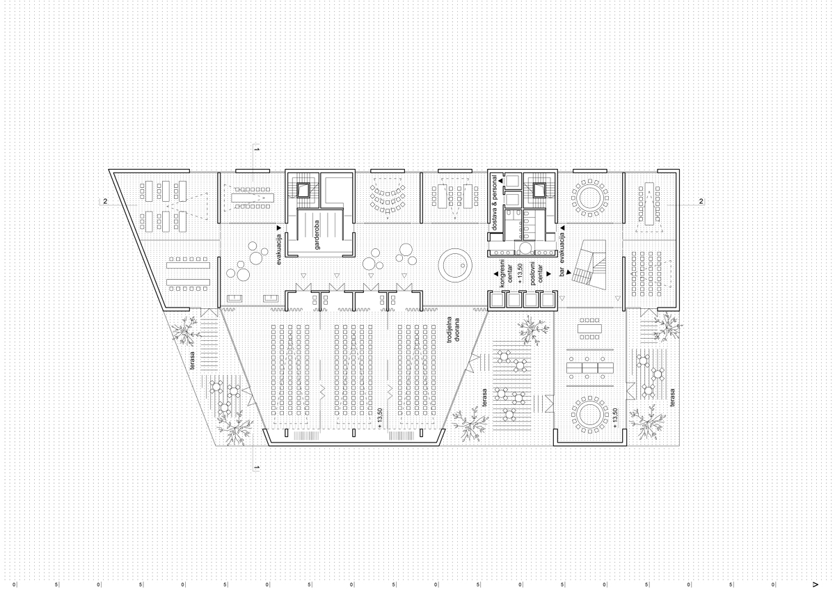
Hibridni program urbanih hotela integralni je dio suvremenog grada. Pozicioniranjem urbanih hotela u manje razvijene dijelove grada oživaljava se okolno gradsko tkivo te akcelerirano potiče razvoj. Program hotela na uglu Savske i Nove ceste u Zagrebu, koji uz sam smještaj sadrži i retail, sport/spa, konferenciju, bar i restoran, projektiran je kako bi se ti sadržaji potencirali te stvorili atraktivni prostori za boravak i aktivnosti, ne samo za goste hotela, već i okolno stanovništvo. Takvom artikulacijom, hotel postaje gravitacijska zona i generator razvoja čitavog dijela grada.

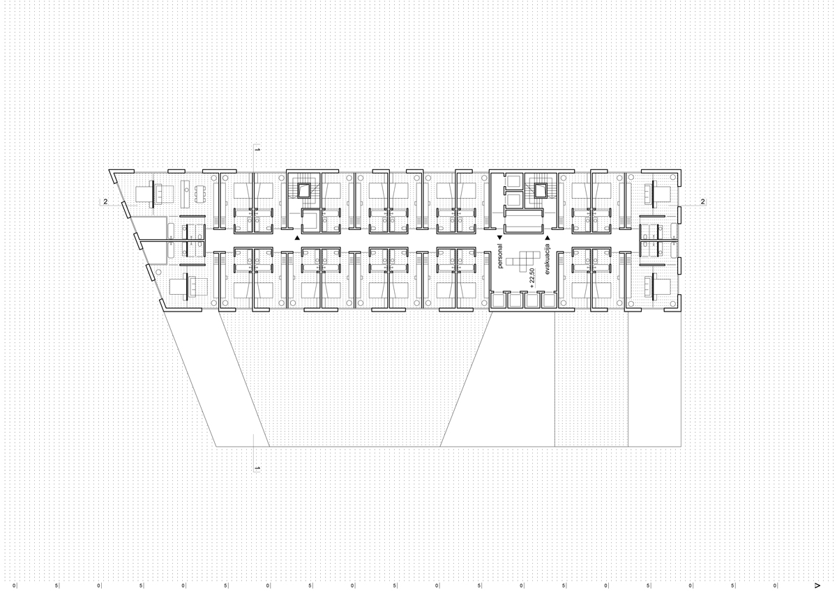
Niz visokih građevina javnog ili poslovnog sadržaja koje tvore prepoznatljivu siluetu Savske ceste, a time i Zagreba, imaju naglašeno usmjerenje paralelno sa ulicom, približno sjever – jug. Specifičnost projektnog zadatka i postojeći kontekst oblikuju program hotela u dvodijelni volumen: viši i niži. Niži dio od pet etaža je postavljen na regulacijski pravac Savske ceste te svojim pročeljem i visinom prati postojeću i planiranu nižu izgradnju Savske ceste. Viši dio zgrade se odmiče u pozadinu otvarajući vizualni koridor koji spaja crkvu Krista Kralja na Mirogoju te Jadranski most. Prizemna etaža se sastoji od ulaznog lobbyja i trgovačkih sadržaja. Trgovine se orijentiraju na ulicu te je programski nadopunjuju i oživljavaju. Javni uzdignuti ‘parter’ na četvrtoj i petoj etaži čine konferencija i restoran sa svojim terasama i vrtovima ispunjenim zelenilom. Zadnja etaža pruža pogled na grad u svim smjerovima i udomljuje sky bar i spa centar.