autor: BIRO
projektni tim: Hrvoje Arbanas, Tihana Bosnar, Saša Košuta, Mario Kralj, Dora Lončarić, Vana Pavlić
investitor: Grad Zagreb
lokacija: Špansko, Zagreb
status: javni arhitektonski natječaj, 4.nagrada
godina projekta / izvedbe: 2019.
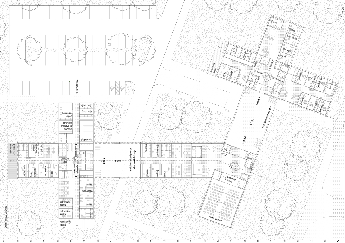
Projekt Doma zdravlja Zagreb Zapad - Ambulanta Špansko formira se kao nova građevina koja će zamijeniti i sadržajno nadopuniti postojeću građevinu, te postojeći objekt u konačnici ukloniti.
Respektiranjem početne koncepcije urbanističkog plana iz 1977. koji je diktirao oblikovanje šireg konteksta naselja oblikuje se i građevina Doma zdravlja s neposrednim okolišem. Potencira se razvedena paviljonska izgradnja unutar bogatog perivojnog pojasa, a pješački tokovi koji povezuju naselje s parkom i ostalim javnim sadržajima prodiru kroz volumen Doma zdravlja i stvaraju nove točke javnog okupljanja. Valorizira se postojeće visoko zelenilo i rekonstruira planom predviđena površina za parkiranje.
Uz pješačke prodore kroz Dom zdravlja formirani su glavni ulazi i natkriveni i nenatkriveni trgovi. Središnji prizemni volumen okuplja javne i zajedničke sadržaje kako u službi samog Doma zdravlja tako i šireg naselja. Prostorni sklop dvoetažnih ukrštenih lamela organizira jednostavan i pregledan pristup te komunikaciju korisnika kroz sve odjele Doma. U križištima lamela pozicionirane su vertikalne komunikacije na koje se veže horizontalna mreža hodnika. Monotonija utilitarnih hodnika je prekinuta brojnim proširenjima u obliku čekaonica.
Horizontalno diferenciranje punog i ostakljenog segmenta pročelja višestambenih zgrada naselja definira i oblikovanje pročelja samog Doma zdravlja. Dvije “zadebljne ploče”, međukatna i krovna definiraju ostakljene segmente prizemlja i kata. Puni segmenti pročelja su dodatno naglašeni oblikovanjem stupova otvorenih ulaznih trgova i krovnim instalacijskim dimnjacima.













