autor: BIRO
projektni tim: saša košuta, mario kralj, dora lončarić, hrvoje arbanas, vana pavlić, mario peko
lokacija: Trešnjevka
investitor: grad Zagreb
status: javni natječaj, 2.nagrada
godina projekta: 2020
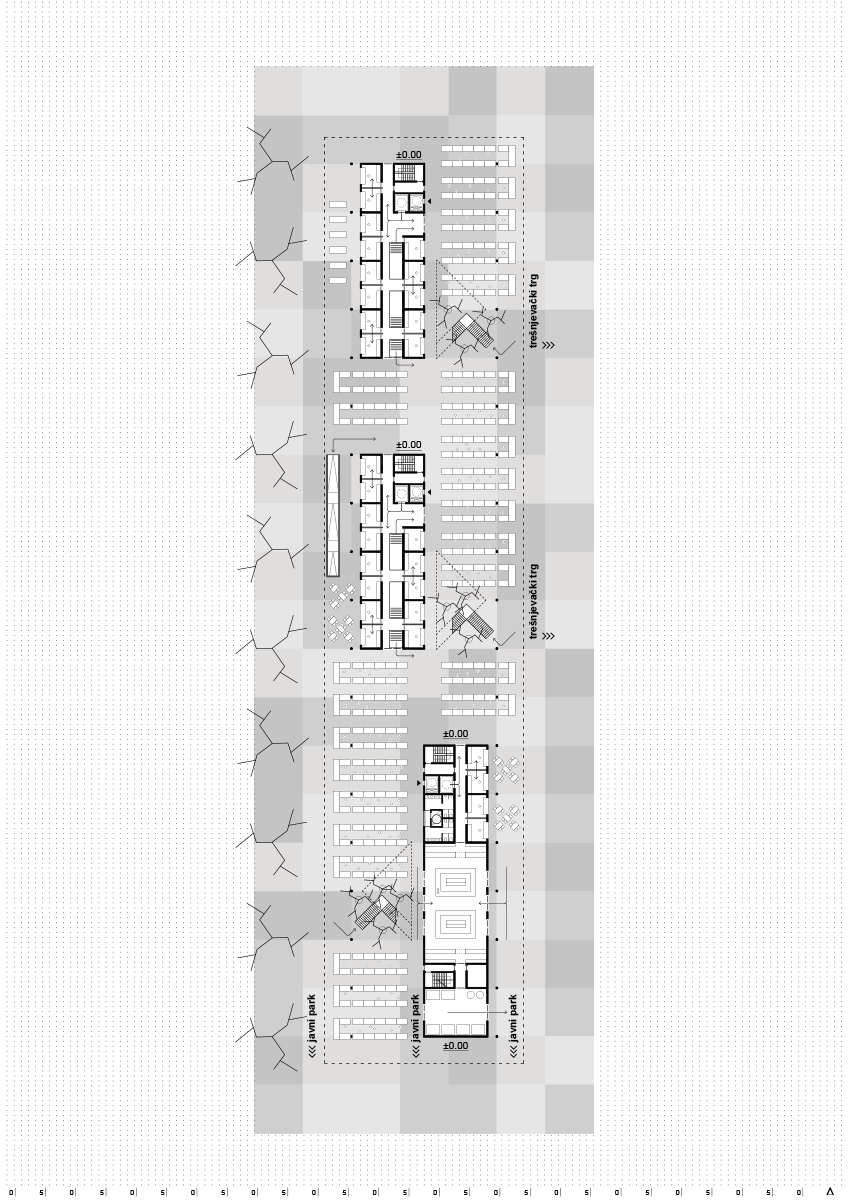
Prostor središta Trešnjevke je formiran kao žarište umreženih javnih površina, kretanja i aktivnosti. Žarište s centrom na Trešnjevačkom trgu blisko komunicira s tržnicom, južnim novoformiranim parkom, Parkom Zvonimira Milčeca i sjevernom zelenom zonom. Sustav jasnih javnih prostora uvodi red u neuredan trešnjevački ambijent, eventualno romantičan.
Crvena trešnjevačka zona u formi parterne obloge izraženog identiteta objedinjuje užu zonu i provlači se kroz prizemlje otvorene tržnice, polja obodnih parkova, kontaktnu zonu prometnica i javnog prometa, te prelazi preko prometnica u obliku nathodnika. Na svoju pikseliziranu matricu veže različite aktivnosti, scenarije i namjene. Tržnica je formirana kao veliki četverostrešni krov koji lebdi iznad crvenog partera i natkriva otvorenu površinu tržnice. Izvan radnog vremena ona pripada trgu i parku. Izmaknuti prizemni zatvoreni prostori podržavaju ideju parternih prolaza kroz zapadni stambeni blok i istovremeno ostvaruju natkrivenu cjelinu s trgom, gradski trijem. Izmicanjem najjužnijeg prizemnog volumena formira se komunikacija između trga i južnog parka blokirajući kontakt s dostavom i gospodarskom zonom.
U krovu se nalazi zatvorena tržnica. Veza između trga, natkrivene tržnice i zatvorene tržnice na katu ostvaruje se preko tri velika atrija, zatvorena dvorišta. Atriji osiguravaju ugodnu mikroklimu u etaži krova, te osvjetljavaju duboku širinu prizemnog trijema. Geometrija krova je usitnjena i pripada kontekstu Trešnjevačke matrice.











